岡崎市鴨田町字山畔
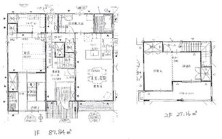
◎2階の洋室は生活スタイルに合わせ2部屋に間仕切り可能! ◎1階寝室には大容量の収納スペース! ◎玄関を入ってスグの和室はお客様用途だけでなく寝室と繋げて広々空間としても♪ 掘りごたつも魅力的♪ 周辺環境も充実しており生活利便性の高い立地です。
-
ローンシミュレーションこの物件を購入した場合の、月々の支払い価格の一例です。借り入れを保証するものではございません。
- 返済期間
-
- 金利
-
- ボーナス時の増額(1回分)
-
- 借入金額:
-
- 頭金:
-

- 毎月の返済額:
(※元利均等方式 金利5.00%まで ※返済年数5~50年まで入力できます)
(※ボーナスは年2回で計算しています。1000万円まで入力できます)
(※物件購入時、その他諸費用が発生する場合がございます)
情報の見方担当者のコメント 市川貞弘

- 高台にある物件です。2階からの眺望良好です!
◎2階の洋室は生活スタイルに合わせ2部屋に間仕切り可能!
◎1階寝室には大容量の収納スペース!
◎玄関を入ってスグの和室はお客様用途だけでなく寝室と繋げて広々空間としても♪ 掘りごたつも魅力的♪ 周辺環境も充実しており生活利便性の高い立地です。
◇◇ 顧客満足度・地域No.1を目指す岡崎市北部・細川町にある不動産屋
イエステーション岡崎店 栄コンサルタント㈱です ◇◇
当社では 当エリアに精通したスタッフが豊富な知識と情報量で
資金計画、住宅ローン、相続に関するご相談、不動産に関するお悩みはもちろん
他社様では敬遠されがちな【分家用地の売買】には特に自身を持って
お住いの『売りタイ』『買いタイ』を全力でお手伝いさせていただきます!
※ 現地へのご案内、随時、受付中♪ ※
お客様とのコミュニケーションを大切に♪ フットワーク軽く♪
お一人お一人のご要望に しっかりと向き合い きめ細やかに対応させていただく事を
心掛けています! 些細な事でも構いません。
まずはお気軽にお電話を♪ 0564-64-1537
◇◇ 不動産の売買・ご相談は 栄コンサルタント㈱にお任せ下さい ◇◇
物件概要
【中古一戸建】 物件番号:87836965 情報更新日:2026年03月06日 次回更新予定日:2026年03月20日所在地 愛知県岡崎市鴨田町字山畔1番地273 交通 間取り/詳細 3LDK/ 建物面積(坪数) 115.00㎡(34.78坪) 価格 3,950万円 駐車場/月額料金 有/- 土地の敷金/保証金 -/- 借地料/借地期間 -/- 土地権利 所有権 土地面積(坪数) 256.15㎡(77.48坪) 傾斜地部分面積 - 路地状敷地 - 私道負担面積/セットバック -/無 高圧線下面積 - 地目/地勢 宅地/- 接道状況 一方(南 公道 4.5m 間口 14.5m) 建ぺい率/容積率 60%/200% 用途地域 第一種住居 都市計画 市街化区域 種別/構造 中古一戸建/木造 階建 2階建 築年月(築年数) 2004年 8月 (築21年) 総区画数/販売区画数 -/- 向き - 現況 空家 その他の法令上の制限 砂防法/宅造法、建築基準法22条1項区域、 取引態様/引渡時期 仲介/相談 建築確認番号 - 物件番号 87836965 取引条件の有効期限 2026年03月20日 設備条件 - 閑静な住宅地
- バルコニー
- 都市ガス
- 公営水道
- 公共下水
- 電気有
- 堀ごたつ
- ウォークインクロゼット
備考 ■付属建物有(車庫)コンクリートブロック造陸屋根平屋建(15.95㎡)
■付属建物有(車庫)鉄筋コンクリート造陸屋根平屋建(30.04㎡)
■(物置)軽量鉄筋造平屋建(6.75㎡)
◎建築基準法第22条1項区域 ◎宅造法 ◎砂防法
取扱会社 - イエステーション岡崎店・栄コンサルタント 株式会社
- 愛知県岡崎市細川町字長原46-54
- TEL:0564-64-1537
- 愛知県知事 (2) 第023776号
※地図上に表示される物件の位置は付近住所に所在することを表すものであり、実際の物件所在地とは異なる場合がございます。
物件お問い合わせ















